最近有没有听说东辰鉴墅91号楼的户型图曝光了?这可是个大新闻啊!想象站在91号楼的阳台上,俯瞰整个城市的美景,是不是瞬间觉得生活都变得美好起来了呢?今天,就让我带你一起揭开东辰鉴墅91号楼的神秘面纱,看看这个户型图到底有多吸引人!
一、户型概览:空间布局,匠心独运

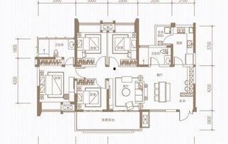
首先,让我们来一睹为快,东辰鉴墅91号楼的户型图。这款户型设计巧妙,空间布局合理,无论是单身贵族还是家庭和睦,都能在这里找到属于自己的温馨小窝。
户型图显示,91号楼的户型分为多种类型,包括两室一厅、三室两厅、四室两厅等。每个户型都拥有宽敞的客厅和卧室,以及独立的卫生间和厨房。尤其是四室两厅的户型,更是大户型中的佼佼者,适合大家庭居住。
二、亮点解析:细节之处,彰显品质

接下来,让我们深入解析一下91号楼户型的亮点。
1. 采光充足:户型图显示,每个房间都拥有充足的采光,无论是白天还是夜晚,室内都充满阳光,让人心情愉悦。
2. 南北通透:91号楼的户型设计充分考虑了南北通透性,使得室内空气流通,有利于居住者的健康。
3. 动静分区:客厅、餐厅、厨房等公共区域与卧室、书房等私密区域明确划分,既保证了动静分区,又提高了居住的舒适度。
4. 多功能空间:部分户型还设有储藏室、衣帽间等,为居住者提供了更多的收纳空间。
三、配套设施:生活便利,尽享舒适

除了户型的亮点,东辰鉴墅91号楼的配套设施也是一大看点。
1. 绿化景观:小区内绿化覆盖率高达40%,设有多个景观园林,为居民提供休闲娱乐的好去处。
2. 教育资源:周边名校环绕,让孩子在家门口就能享受到优质的教育资源。
3. 医疗配套:附近有多家知名医院,为居民的健康保驾护航。
4. 交通便捷:91号楼地处城市核心区域,交通便利,周边公交线路众多,出行无忧。
四、市场前景:投资升值,潜力无限
让我们来谈谈东辰鉴墅91号楼的市场前景。
随着城市的发展,东辰鉴墅所在的区域逐渐成为热门地段。91号楼的户型设计合理,配套设施完善,吸引了众多购房者关注。在未来的房地产市场,91号楼的户型有望成为投资升值的热点。
根据相关数据,东辰鉴墅91号楼的房价预计在未来几年内将稳步上涨。对于投资者来说,这是一个不容错过的机会。
东辰鉴墅91号楼的户型图一经曝光,就引起了广泛关注。这款户型设计巧妙,空间布局合理,配套设施完善,市场前景广阔。如果你正在寻找一个理想的居住地,那么东辰鉴墅91号楼绝对值得你关注!






